SSV Professional Center 2 Outparcels Pads For Lease

3256 S Pine Ave, Ocala Florida, 34471

Listing ID: CL-Florida-14337 Commercial Mixed Use Retail
Published on: Tuesday, February 25, 2025 | Updated on: Monday, March 9, 2026

Listing Summary

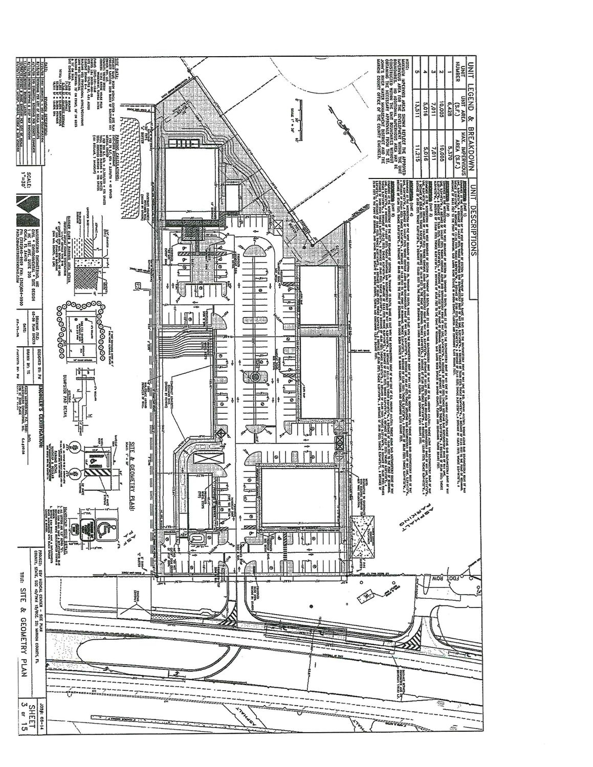
SVN is presenting 2 retail pads improved with main curb access in place , along with future cross access to south parcel which will possible be Storage & outparcel development in future.

Full Description

Drive-Thru Ready! Two Retail Pads on Hwy 27

SVN presents a rare opportunity to secure improved retail pads at the bustling intersection of Hwy 27 & SW 32nd St.

? Pad 1: Supports a ~900 SF Drive-Thru concept.

? Pad 2: Supports a ~1,750 SF Drive-Thru concept.

? Ready to Go: Main curb access in place with future cross-access to the southern parcel.

? Prime Growth: Located in a high-traffic zone near future storage and outparcel developments.

Don't miss out on these "plug-and-play" sites for your next QSR or retail project!


Site Specifications Summary

Feature Detail
Location NE Intersection of Hwy 27 & SW 32nd St
Pad A Capacity Approx. 900 SF with Drive-Thru
Pad B Capacity Approx. 1,750 SF with Drive-Thru
Access Existing main curb access; future southern cross-access
Surrounding Dev. Future Storage & Outparcels to the South

 

Quick Glance

  • Listing ID: CL-Florida-14337
  • Status: Active
  • Year Build: 2012
  • Building Size: 18,200 SqFt
  • Lot Size: N/A

Complete Details

  • Year Build: 2012
  • Building Size: 18,200 SqFt
  • Heating and Cooling: Not Specified

Lending Opportunities

Interested in making an offer? Our network of experienced lenders is ready to provide competitive loan options. Get pre-approved today!

Company Name Lender Type Contact Name Contact Number Actions
Easy Home Loans, LLC Mortgage Broker Ana M Gonzalez (786) 525-7126
Universe Financial Corp Mortgage Broker Melody Bejerano (305) 505-3053

Business Opportunities

LoopingCloud connects you with property buyers, sellers, and agents. Feature your business on residential and commercial listings.

Company Name Business Type Contact Name Contact Number Actions
EC Title Services, LLC Title Services Cary Granda (305) 953-4040
Bay Title Company Title Services Alana Supraski (305) 692-8886

Material Opportunities

Showcase your building materials, fixtures, and specialty supplies to buyers and contractors actively working on projects.

Company Name Service Type Contact Name Contact Number Actions
Nestor Remodeling, LLC Insulation & Drywall Supplier Nestor (954) 383-2477

Pricing Details

  • Acquisition Option Traditional Purchase
  • Monthly Rent Contact Lister
  • Move-in Cost $0.00
  • Lease Terms NEGOTIABLE
  • Available From Feb 25, 2025
  • Business Included No

Additional Features

Highlights
  • Located Frontage US HWY 27 ( S Pine Ave)
  • 2 Retail Pads with Drive Thrus
  • Nearby Residential & Businesses

Listing Location

Disclaimer: LoopingCloud is a social listing portal that connects real estate professionals, service providers, buyers, and sellers. All property information, descriptions, availability, financial details, and any offerings are provided by the respective lister or service provider and are not independently verified by LoopingCloud.