šŸ¦ Get Your Mortgage or Real Estate Services Seen on Every Listing

Thousands of buyers and investors explore commercial, residential, and business listings every day on LoopingCloud.
Promote your mortgage services or real estate business directly on each listing by state, boost your visibility and connect instantly with serious prospects ready to take the next step.

Offer Your Real Estate Services Today Get started Offer Your Mortgage ServicesĀ Today Get started Offer Your Material ServicesĀ Today Get started
Published on: Wednesday, October 22, 2025
Updated on: Thursday, February 19, 2026
About the Lister
User Profile Image
Name: Antonio Cartagena
Company: INVESTATE Puerto Rico
Office Phone:  
Cell Phone: (787) 717-6443
Provide Your Service
Financing  Business  Material

  38 CALLE HUCAR URB. VILLA FLORES, PONCE, PR 00780

38 CALLE HUCAR URB. VILLA FLORES Ponce Puerto Rico , 00780
38 CALLE HUCAR URB. VILLA FLORES Ponce Puerto Rico                                                                                         , 00780  INVESTATE Puerto Rico
Listing ID: CL-Puerto Rico-26649 Duplex/Triplex/Fourplex/Multifamily

Purchase Option

Acquisition Option: Traditional Purchase
Cap Rate (%): Contact Lister
Net Operating Income: Contact Lister
Quick Glance
Listing ID: CL-Puerto Rico-26649
Status: Accepting Offers
Financing: Third Party Financing
Occupancy: N/A
Year Build: 1980
Building Size: 6,430.00 SqFt
Lot Size: 16,117.20 SqFt.
No of Stories: 2
No of Parking: 25
Offer to Millionaire Club: No
Business Available for Sale: No
Is Net Lease Investment: No
Property On Ground Lease: No
Building Status: Existing
Listing Summary
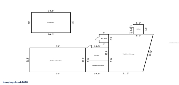
Explore this prime 1,513 SM lot featuring a total of 3,787 SF of construction and exceptional income-generating potential.
Complete Details
Year Build: 1980
Building Size: 6,430 SqFt.
No of Stories: 2
Total Lot Area: 16117.2 SqFt.
No of Parking: 25
No of Total Units: 3
Property Current Status: Normal Sale
Building Status: Existing
Heating and Cooling: Cooling Only
Building Class: Not Specified
Property on Ground Lease?: No
Net Lease Investment?: No
Business Price Included?: No
Roofing: Not Specified
Occupancy: 0%
Full Description

OUTSTANDING MIXED-USE INVESTMENT OPPORTUNITY – PONCE

Explore this prime 1,513 SM lot featuring a total of 3,787 SF of construction and exceptional income-generating potential. The property includes two commercial units (234 SF and 2,143 SF) with a combined rental potential of $3,000/month, plus a partially renovated 3-bedroom, 2-bath residential unit offering $1,200/month potential.

Additional income opportunities include a 752 SF workshop (approx. $700/month) and a storage facility (approx. $400/month), bringing the total potential monthly income to $5,300. The property provides 25 parking spaces, including ADA-accessible stalls, and is equipped with a solar power system under a 15-year lease.

Strategically located in Ponce, this versatile asset is ideal for various uses such as a medical center, senior care facility, educational institution, or light industrial operation. Key features include a modernized kitchen, three independent electric meters, one commercial water meter, galvalum workshop structure, and ample on-site parking.

With annual expenses of only $4,926 (taxes and utilities), this property offers strong cash flow and significant upside for investors looking to maximize rental income and long-term returns.

Additional Properties
Property Highlights
  • Lot Size: 1,513 SM | Total Construction: 3,787 SF
  • Mixed-Use Layout: Two commercial spaces, one residential unit, a workshop, and storage facility
  • Income Potential: Up to $5,300/month in gross rental income
  • Commercial Units: 234 SF and 2,143 SF with approx. $3,000/month potential combined
  • Residential Unit: 3BR/2BA partially updated, approx. $1,200/month potential
  • Workshop & Storage: Additional income from 752 SF workshop ($700) and storage area ($400)
  • Parking: 25 total stalls, including ADA-accessible spaces
  • Energy Efficiency: Solar system with 15-year lease in place
  • Ideal Uses: Medical offices, senior care, education center, or light industrial
  • Low Annual Expenses: Approx. $4,926 (taxes + utilities)
Property Utilities
  • Cable Connected, Electricity Connected, Water Connected
Features
  • Balcony, Fence
  • Public Sewer
Listing Location
Lister's other Properties
Address: CAP DE MAR, BREƑAS , Vega Alta Puerto Rico 00692
Listing ID: CL-Puerto Rico-26644
Listing Type: Commercial
Category: Land - Leased Land
Status: Accepting Offers
Created On: 10/22/2025
Modified On: 2/19/2026
CAP DE MAR, BREƑAS , Vega Alta Puerto Rico                                                                                          00692
Address: BO ZARAL SEC CAROLA , Rio Grande Puerto Rico 00721
Listing ID: CL-Puerto Rico-26638
Listing Type: Commercial
Category: Land - Leased Land
Status: Accepting Offers
Created On: 10/21/2025
Modified On: 10/22/2025
BO ZARAL SEC CAROLA , Rio Grande Puerto Rico                                                                                          00721
Address: BO. JUNCAL PR-111 , San Sebastian Puerto Rico 00685
Listing ID: CL-Puerto Rico-26636
Listing Type: Commercial
Category: Land - Leased Land
Status: Accepting Offers
Created On: 10/21/2025
Modified On: 10/22/2025
BO. JUNCAL PR-111 , San Sebastian Puerto Rico                                                                                          00685
Address: CARR 111 BO CIDRAL SECTOR PALMARITO , San Sebastian Puerto Rico 00685
Listing ID: CL-Puerto Rico-26634
Listing Type: Commercial
Category: Land - Leased Land
Status: Off the market
Created On: 10/21/2025
Modified On: 2/19/2026
CARR 111 BO CIDRAL SECTOR PALMARITO , San Sebastian Puerto Rico                                                                                          00685
⚠ Disclaimer

LoopingCloud is a social listing portal that connects real estate professionals, service providers, buyers, and sellers. All property information, descriptions, availability, financial details, and any offerings under financial services, business services, and material services are provided by the respective lister or service provider and are not independently verified by LoopingCloud. While believed to be accurate, the information is provided ā€œas isā€ without any representations, warranties, or guarantees of any kind. LoopingCloud does not endorse, warrant, or verify the quality, accuracy, or reliability of any property details or services provided through the portal. Interested parties are encouraged to independently verify all information and consult with qualified professionals before making any decisions.

Property Currently Unavailable

This property has been temporarily inactivated by the realtor and is no longer available for viewing.

You can continue browsing other active listings from this realtor.


or explore other properties by category.